• Terreno para venda Restelo, Lisboa, Portugal
    2 995 000 EUR

6 Quartos6 Quartos7 WC7 WCGaragemGaragem

Lote de Terreno | 1.379 m² | Projeto de Arquitetura para 2 moradias | Restelo, Lisboa

  • V0400LI
  • Venda
  • Terreno

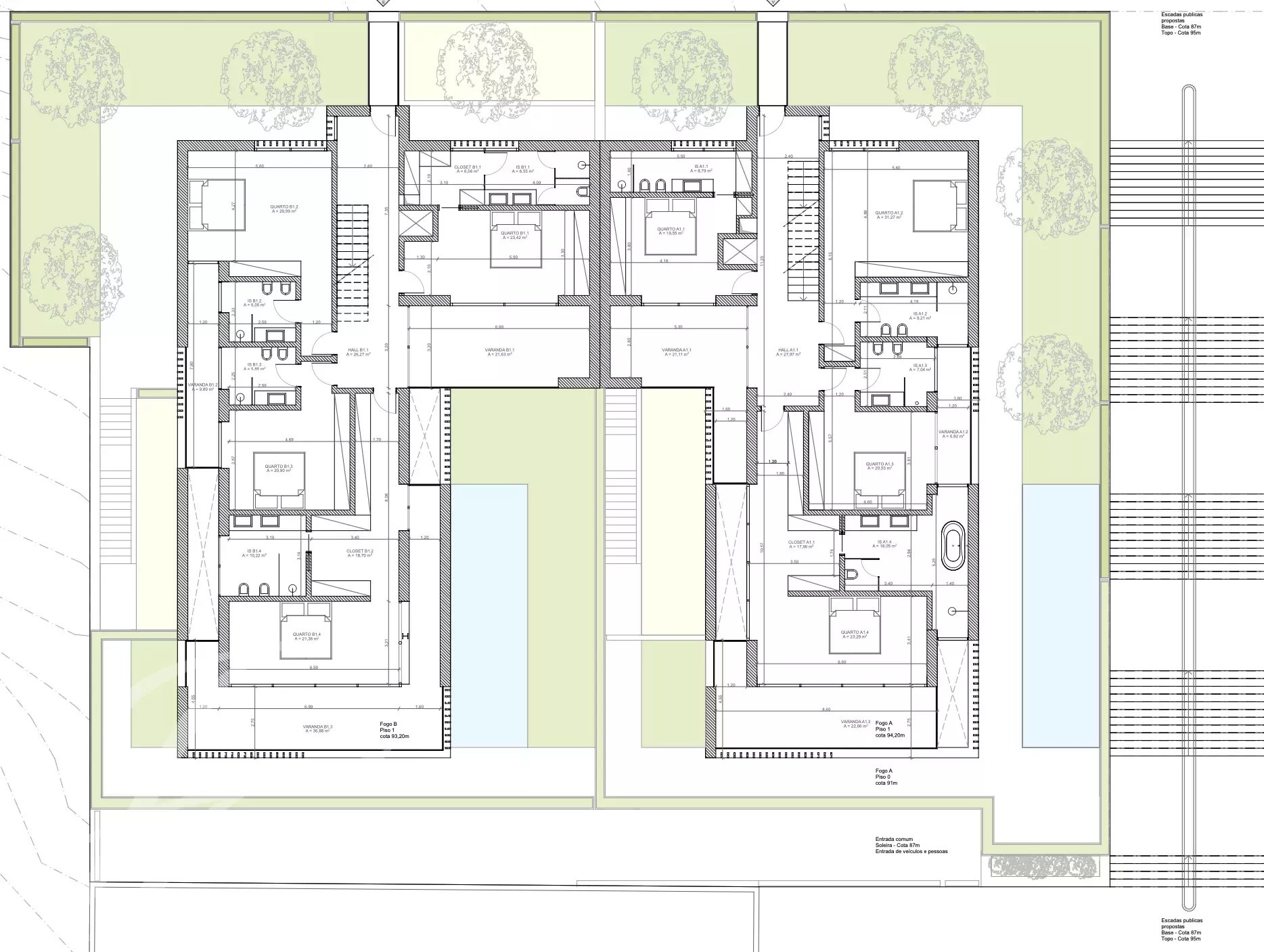
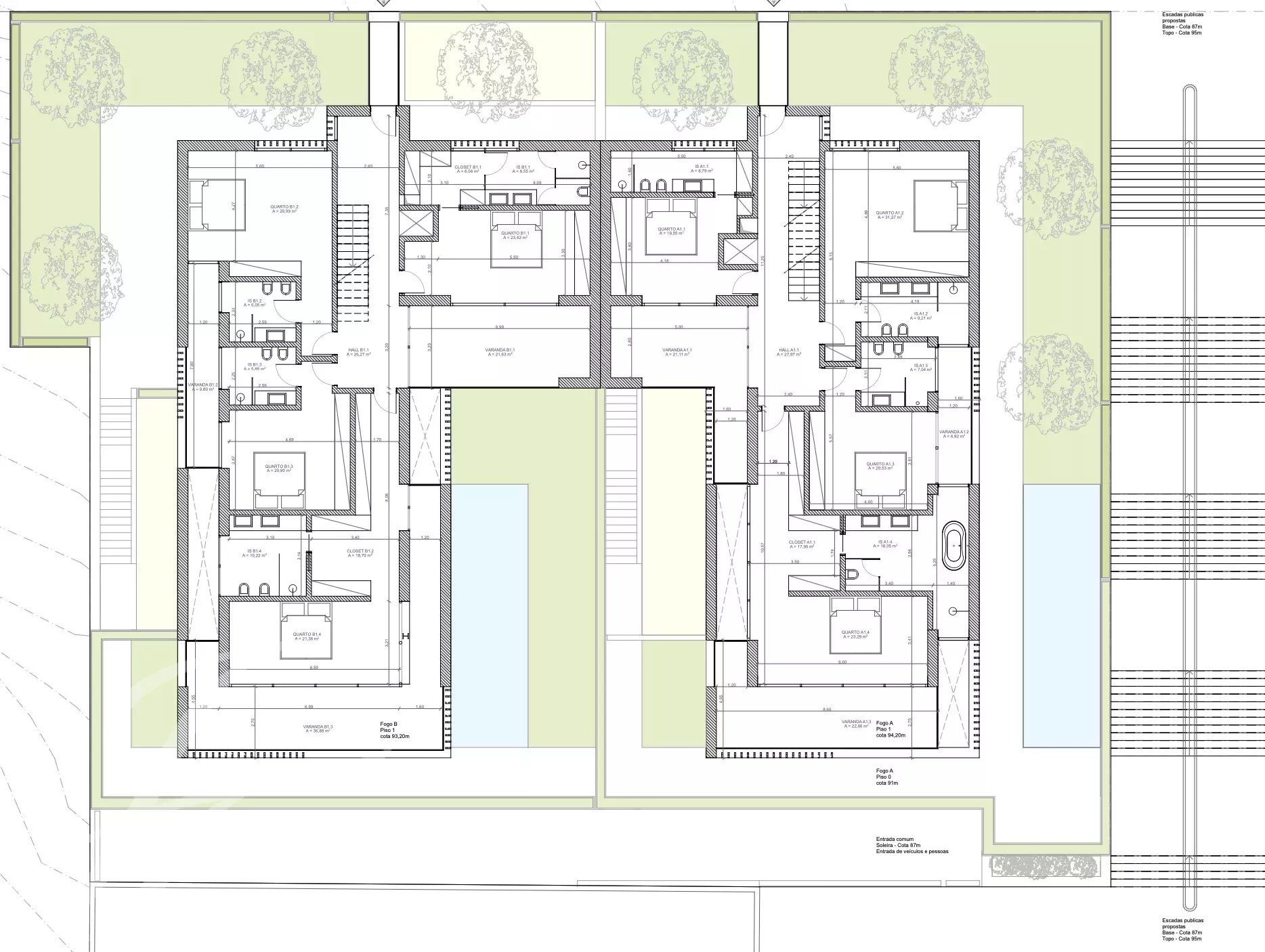
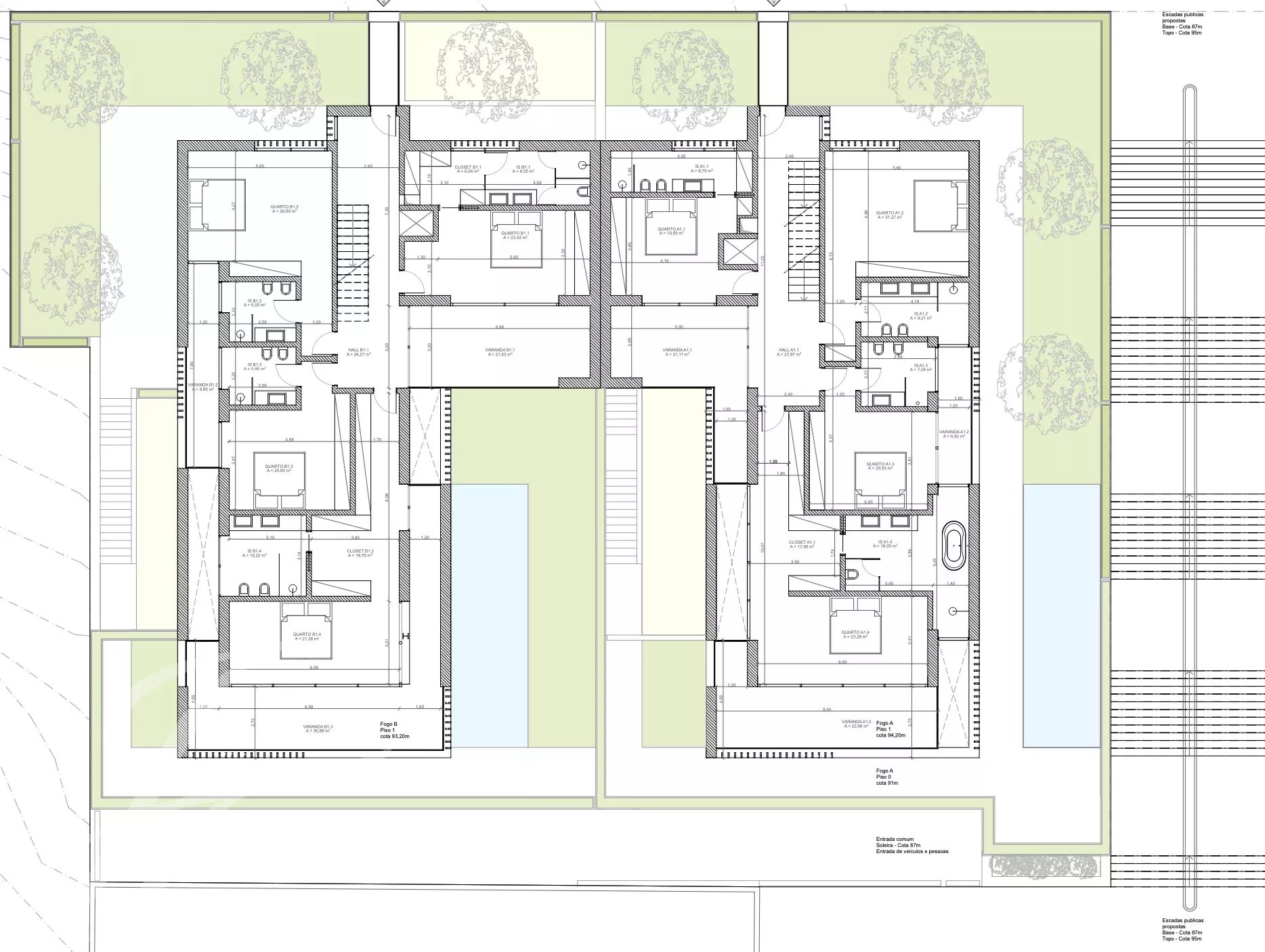
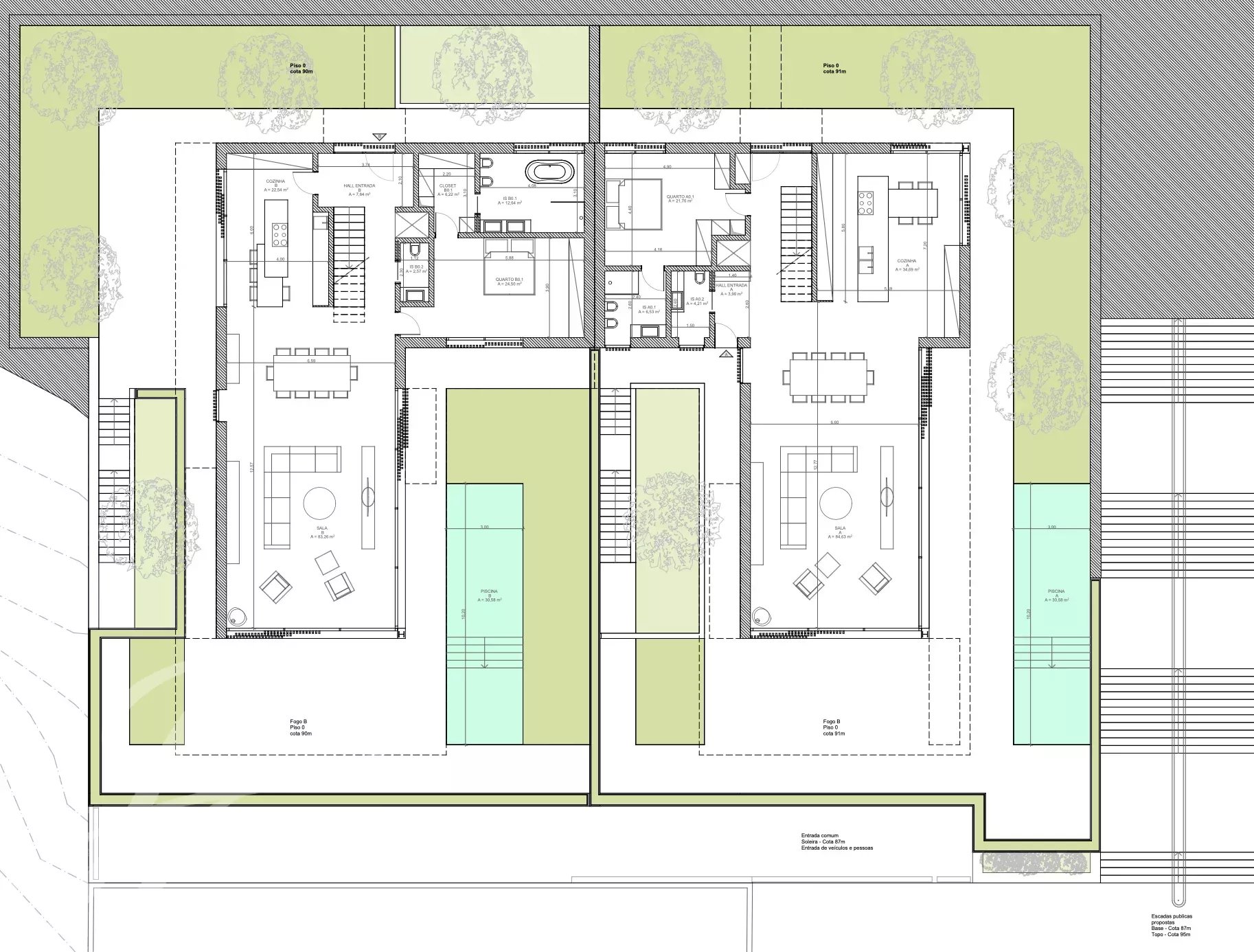
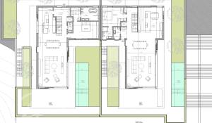
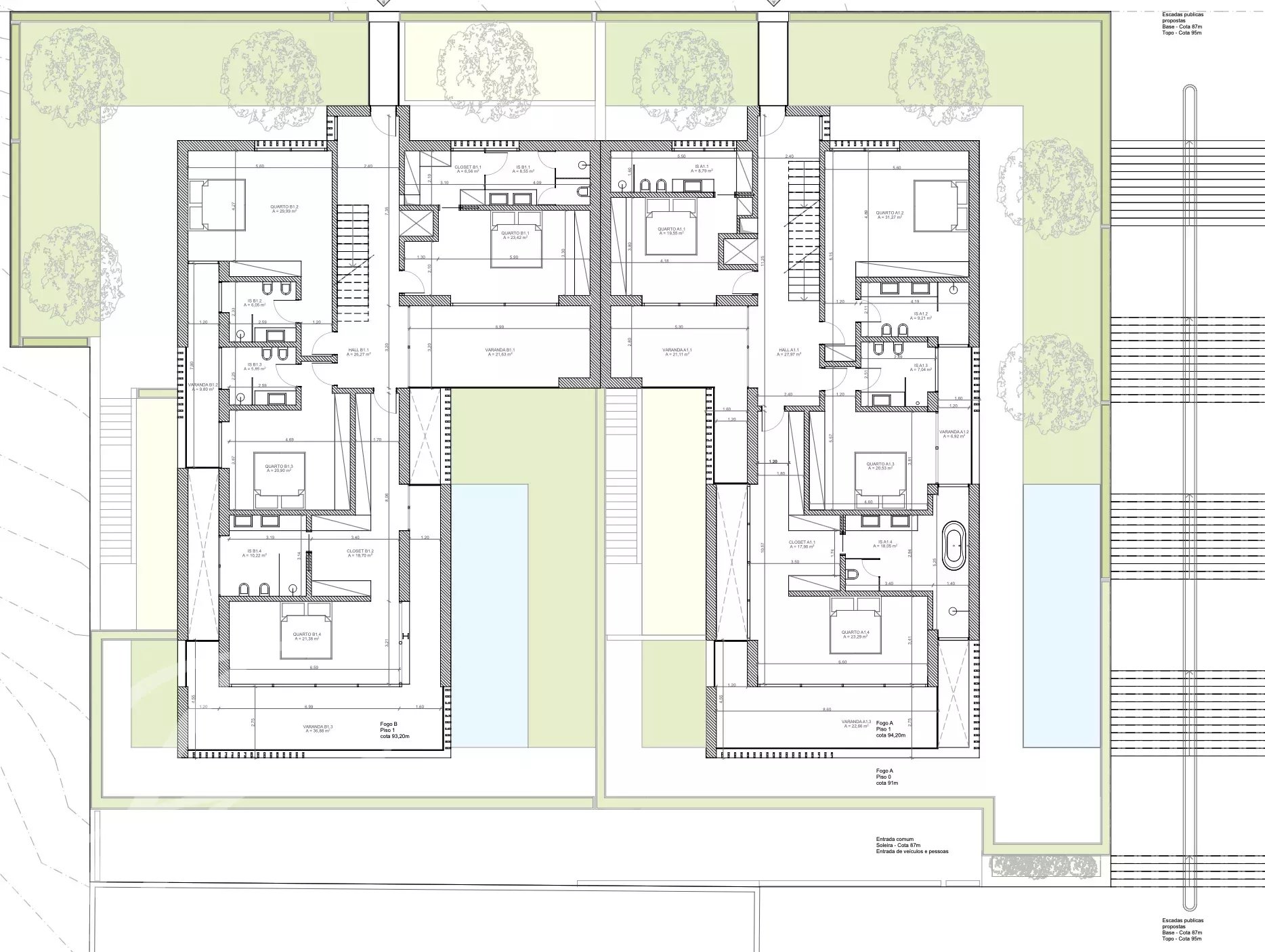
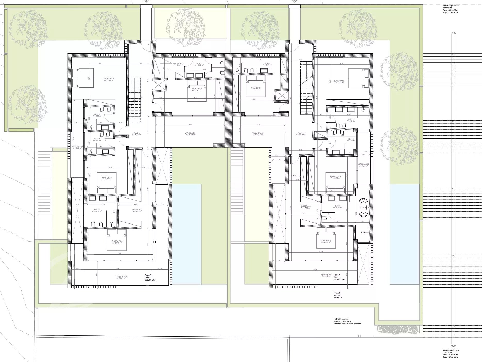
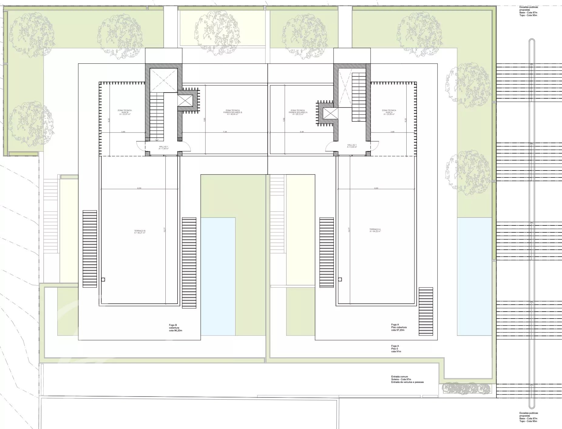
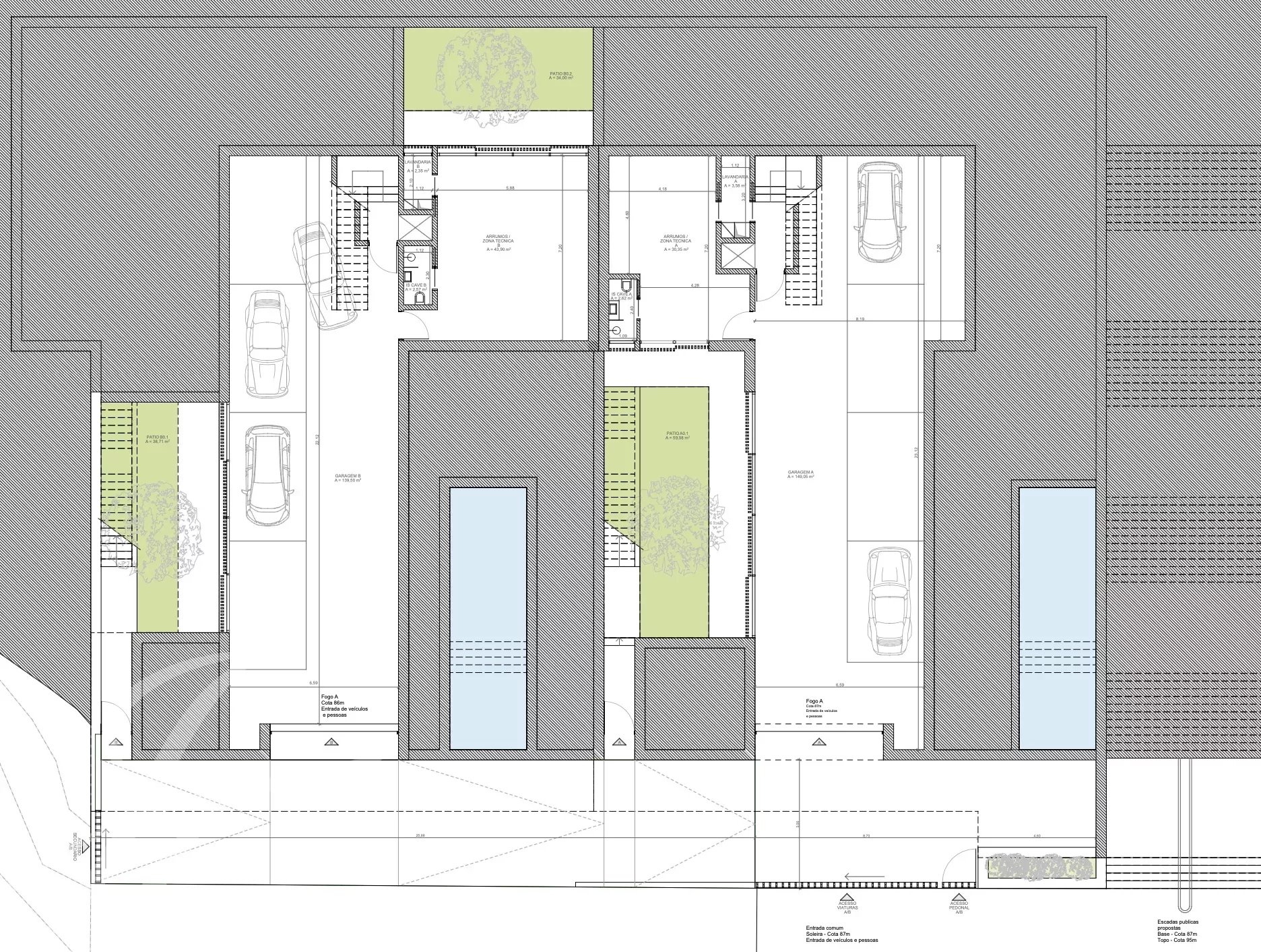
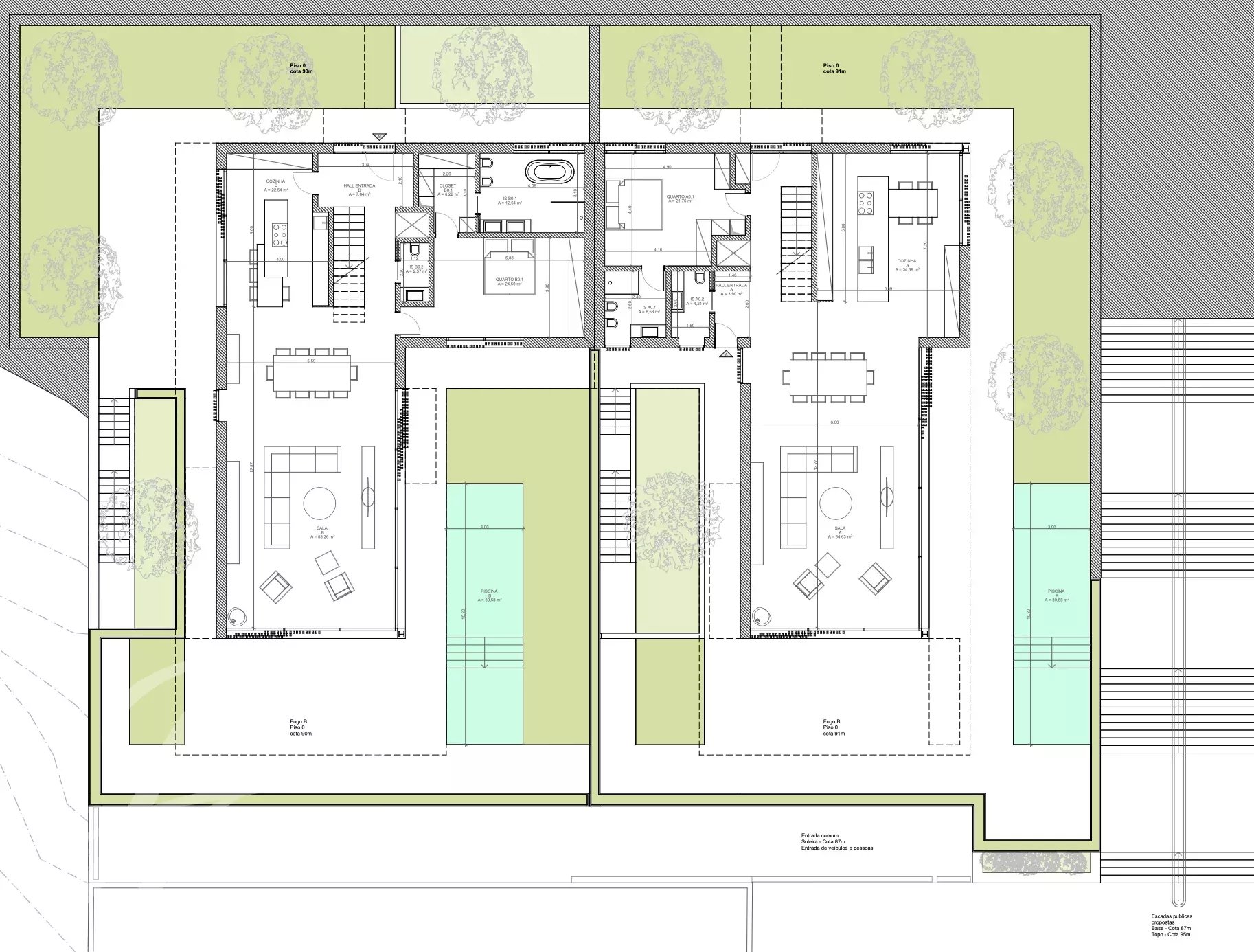
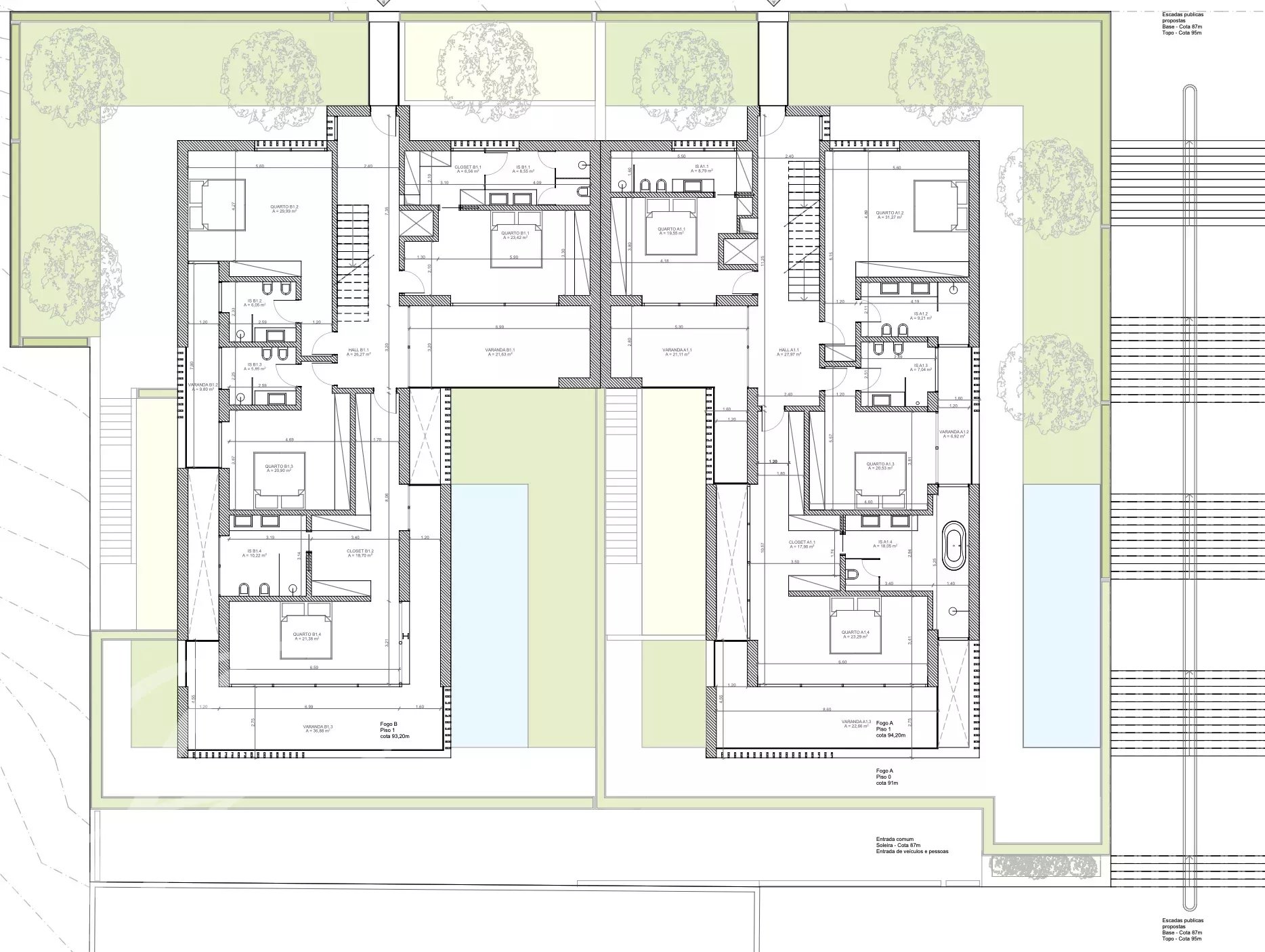
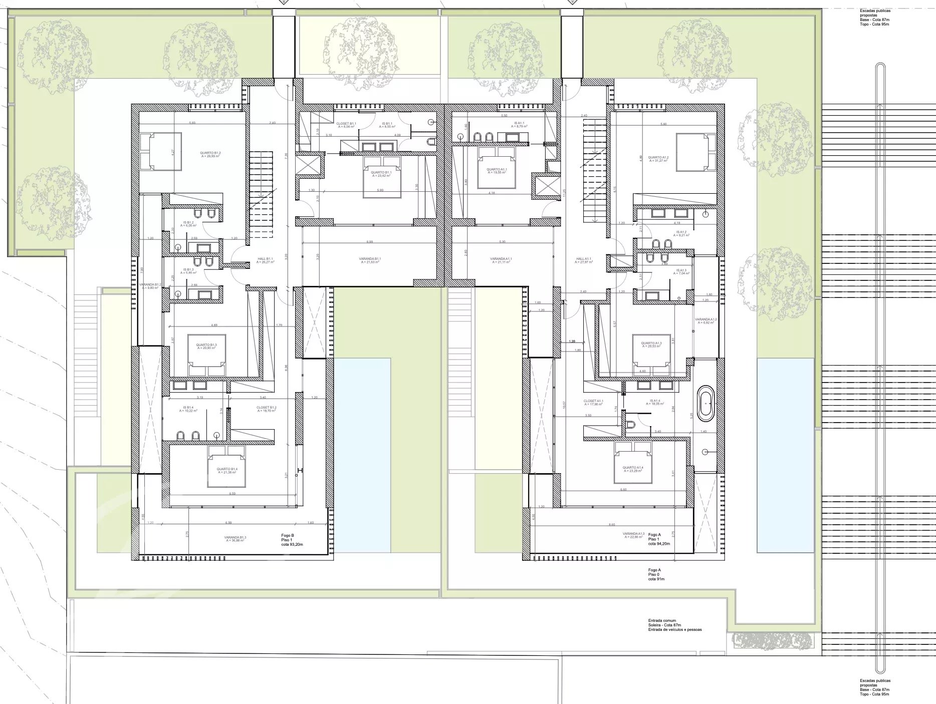
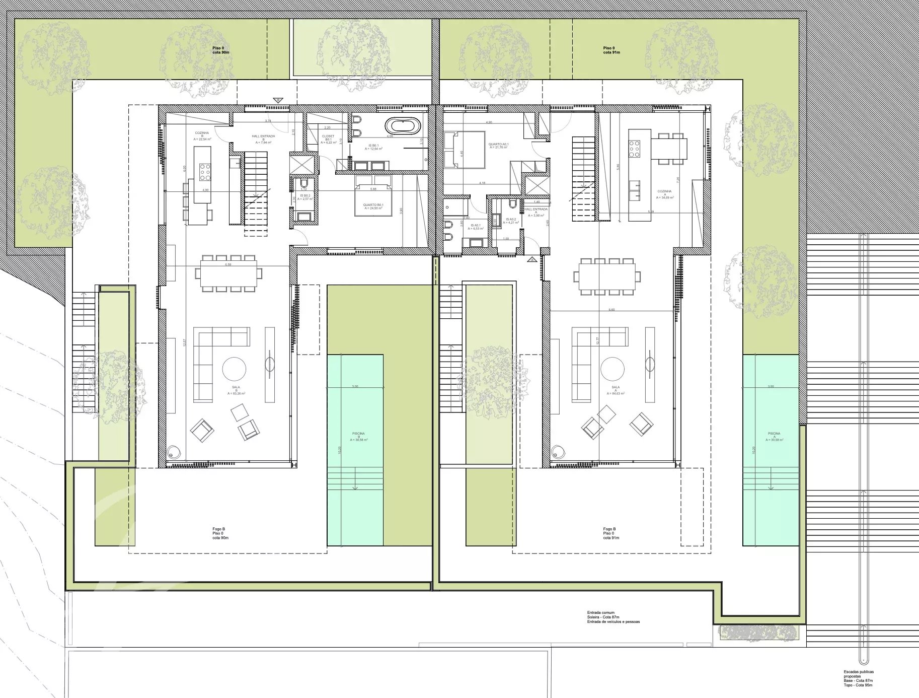
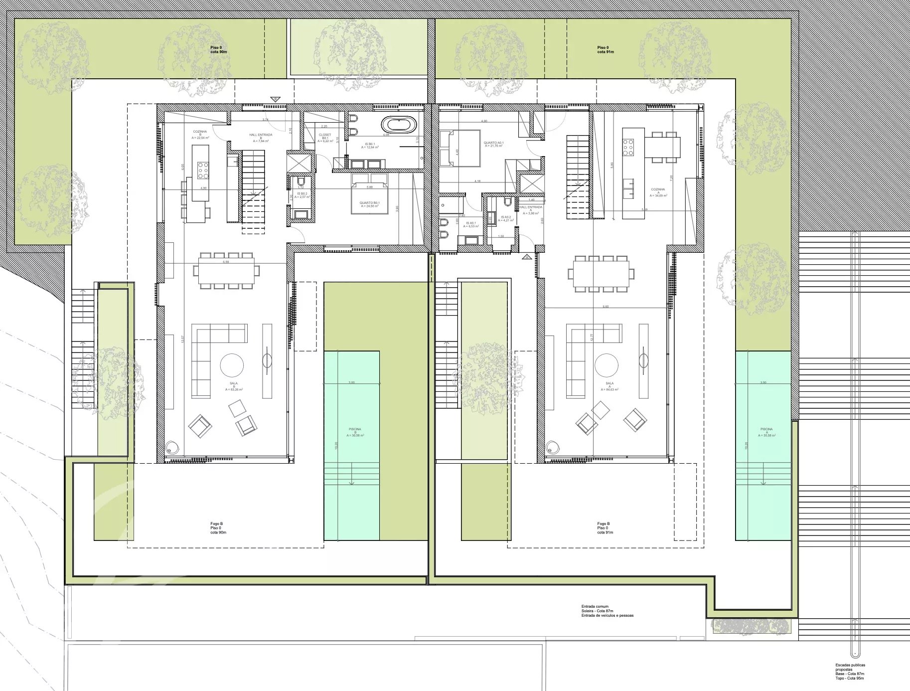
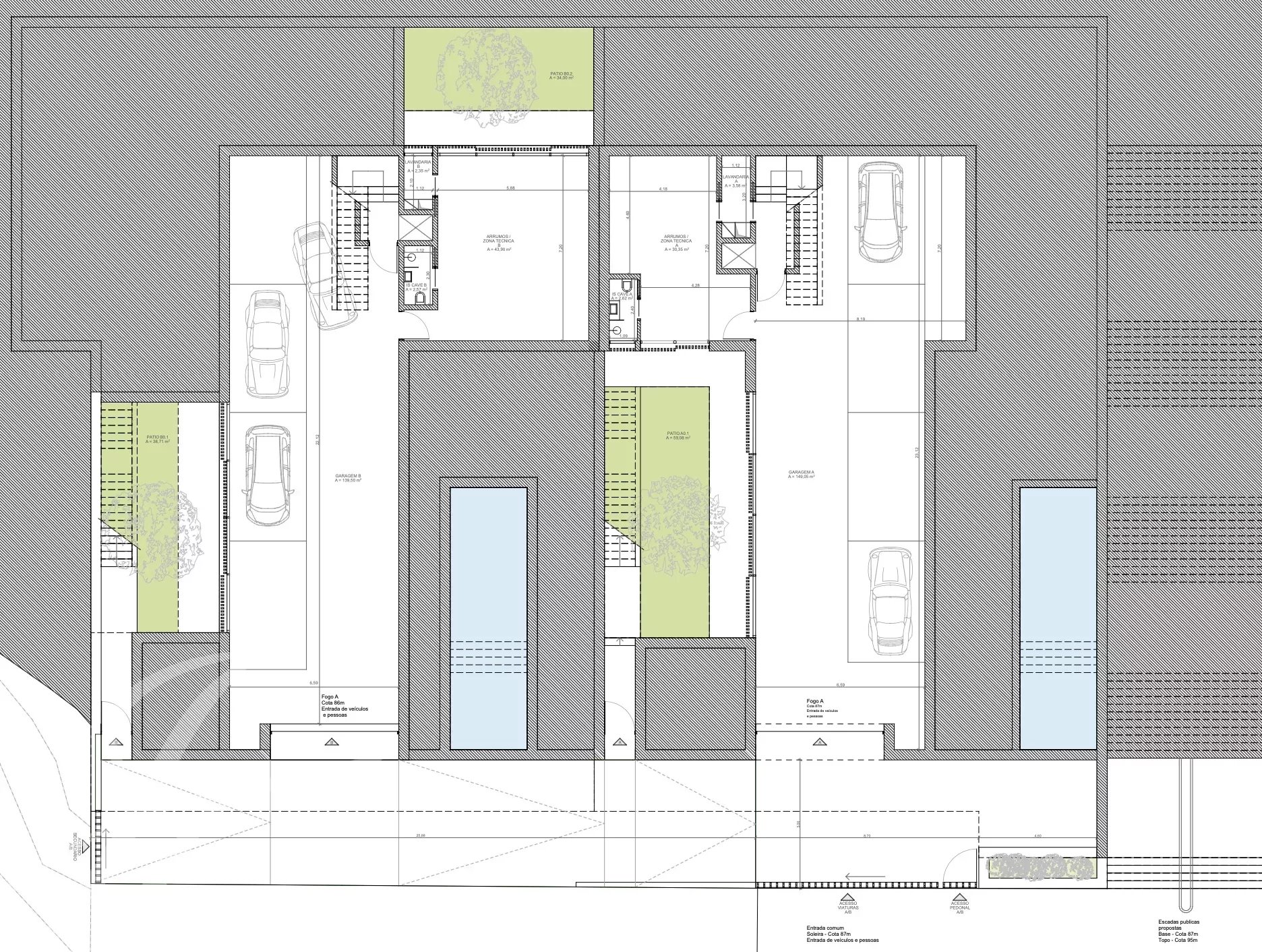
Terreno com 1.379 m², com projeto de arquitetura aprovado que oferece a flexibilidade de construir uma ou duas moradias unifamiliares, sendo a solução atualmente aprovada desenvolvida para duas moradias geminadas, correspondentes a dois imóveis autónomos, implantados num único lote.

O loteamento em vigor permite, em qualquer das opções, uma área bruta de construção acima do solo de 965 m² e uma área de implantação de 495 m², tornando este terreno uma oportunidade única para um projeto residencial exclusivo, seja para habitação própria, seja para investimento ou desenvolvimento de elevado padrão.

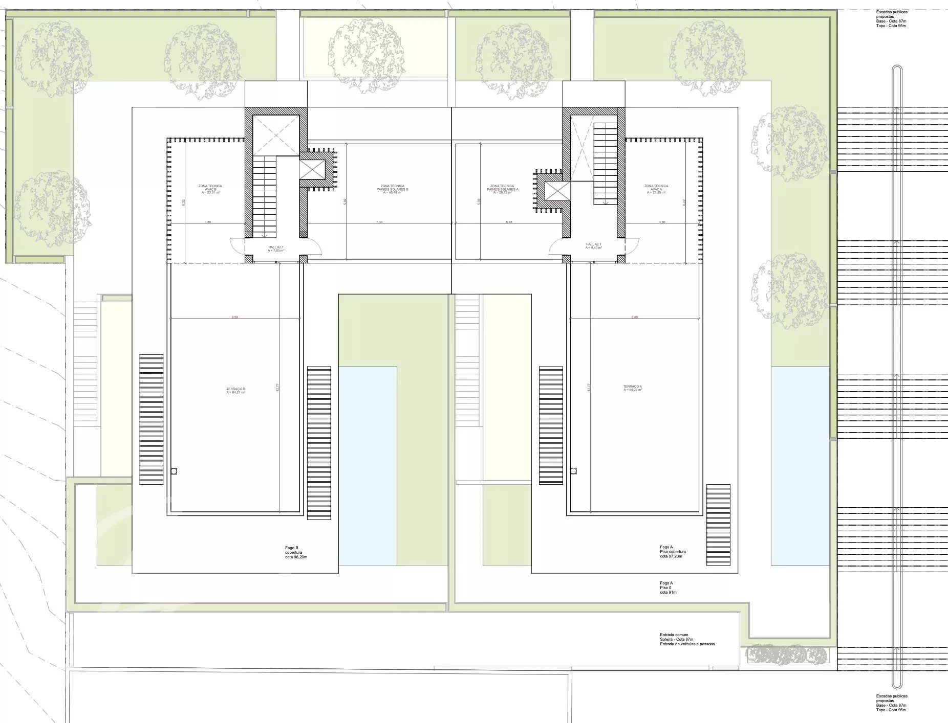
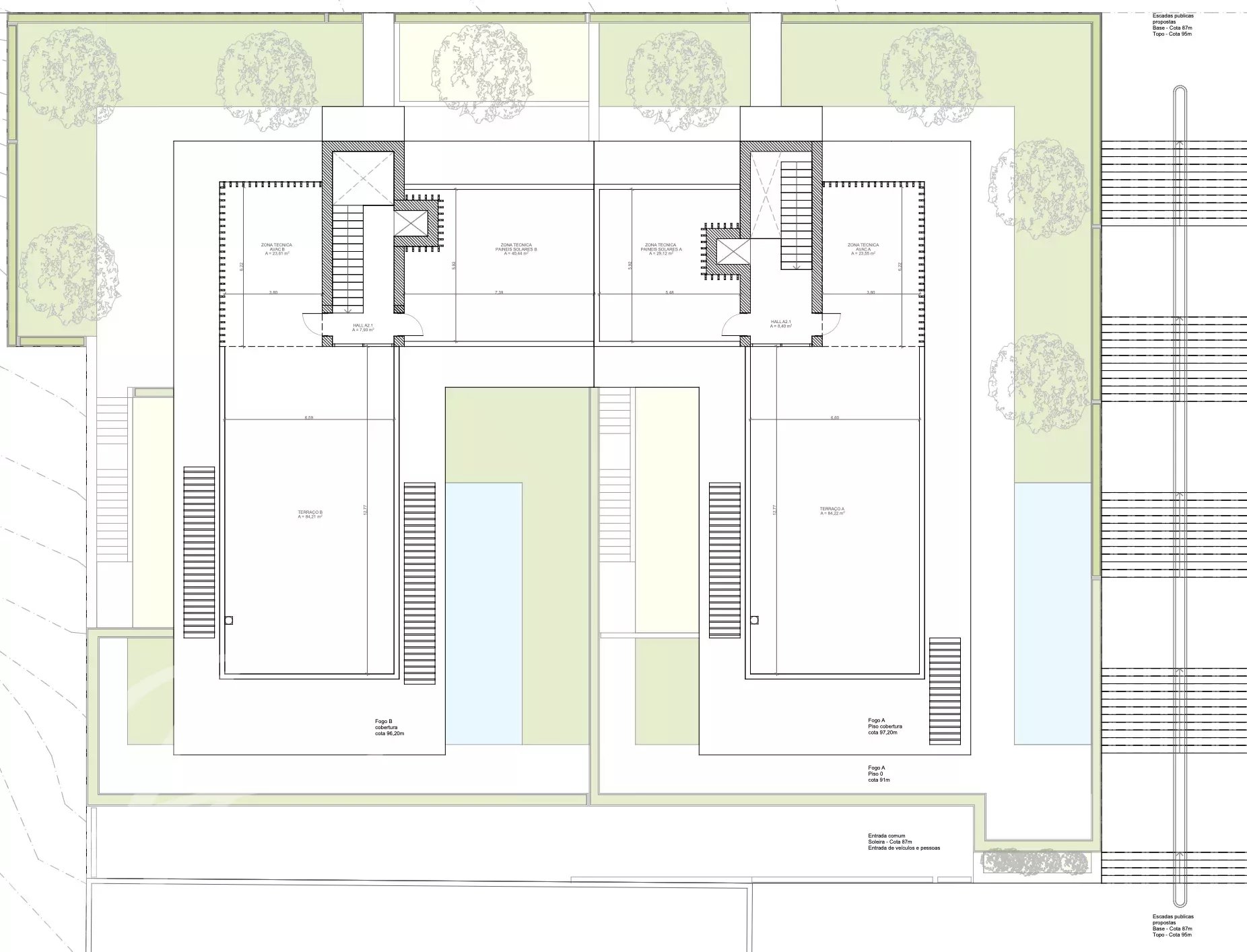
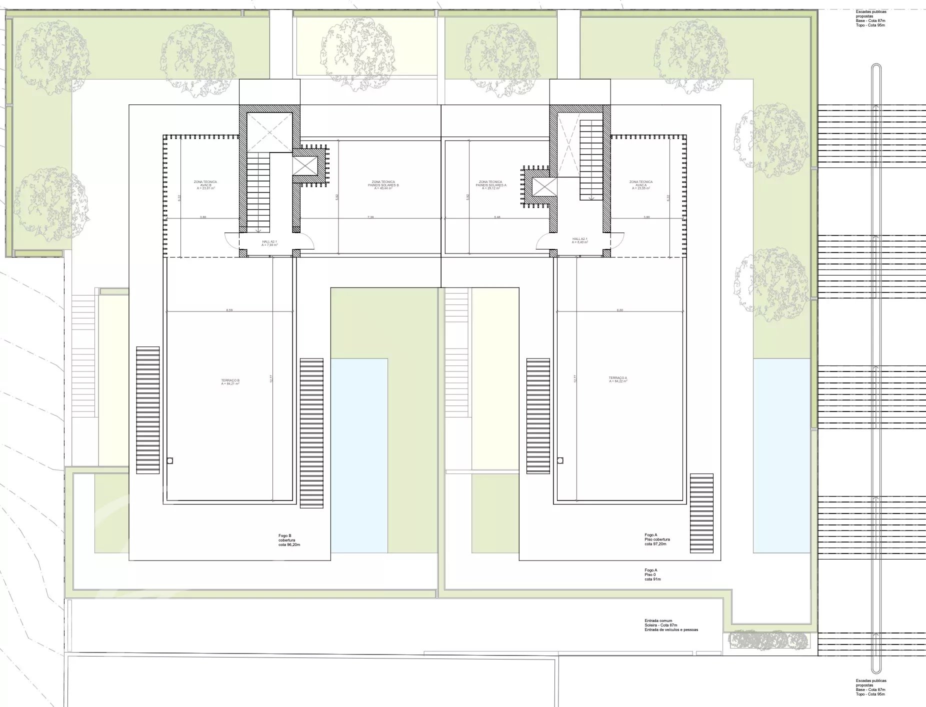
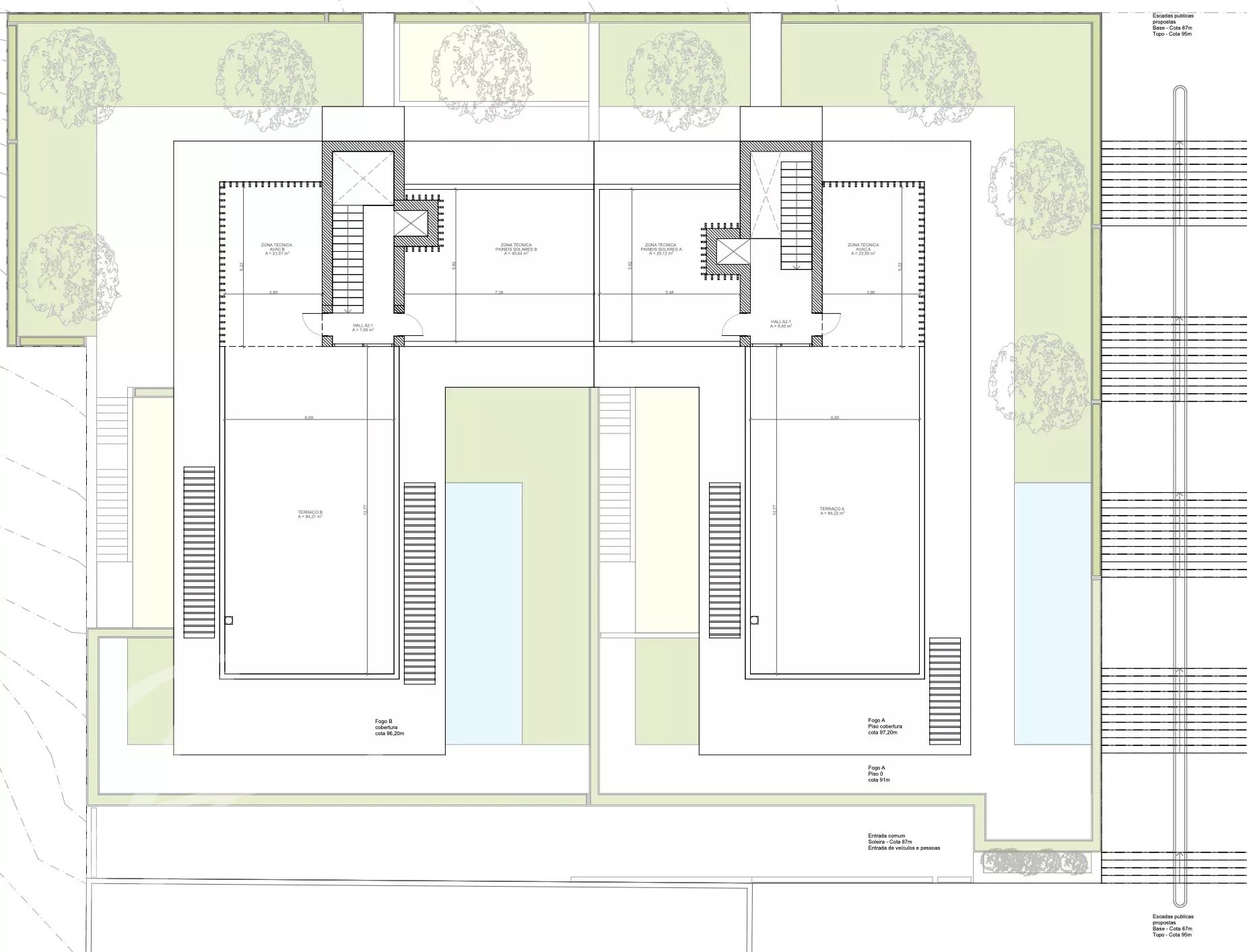
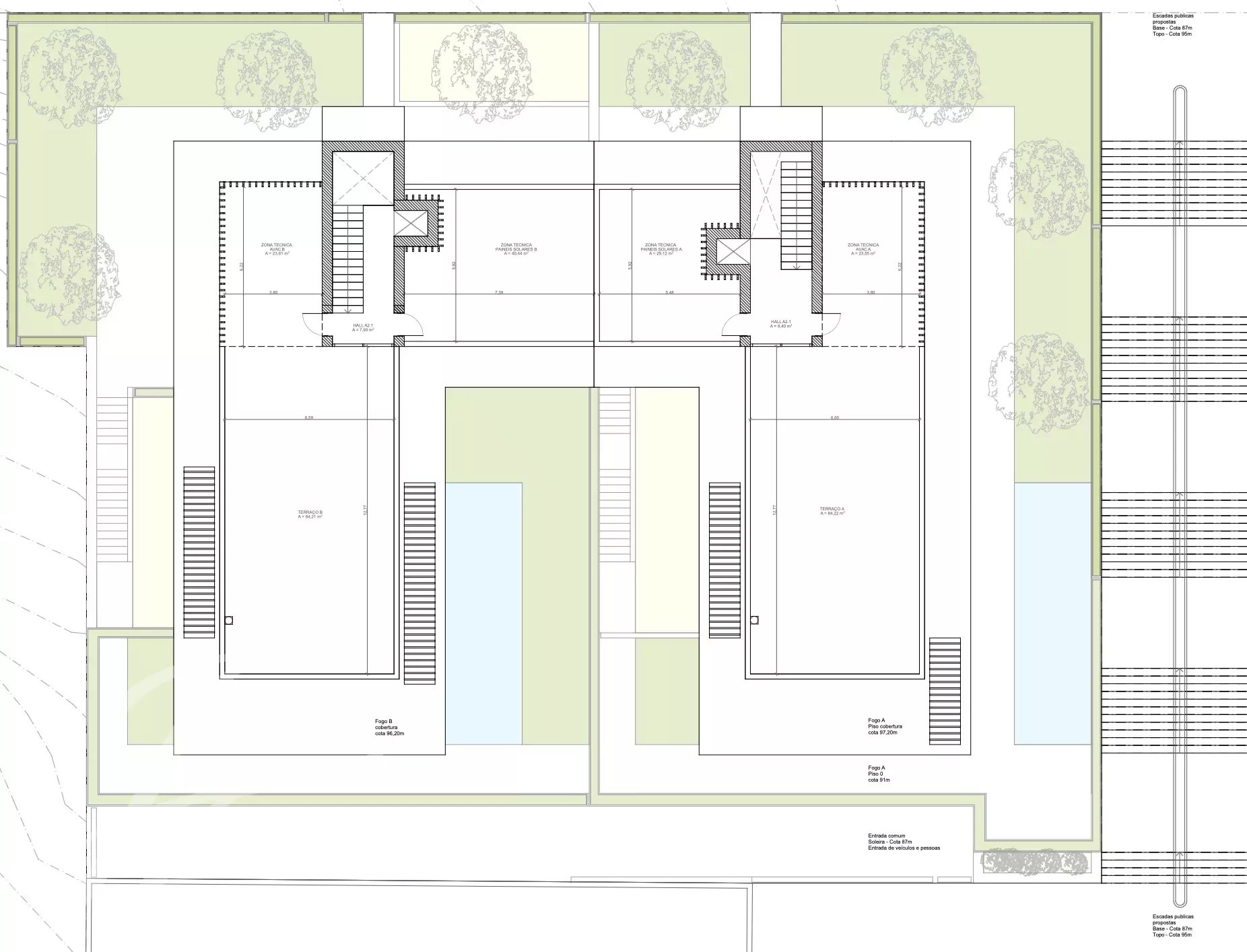
Embora as moradias partilhem a rampa de acesso à cave e a entrada pedonal, cada unidade foi concebida para assegurar total independência funcional e habitacional, dispondo de estacionamento privativo em cave, jardim exclusivo, piscina individual e acessos completamente independentes. O projeto contempla uma cave com garagem para quatro viaturas, arrumos e uma suite com luz natural, amplas áreas sociais no piso térreo, quartos privados no piso superior e um terraço na cobertura com 84 m², oferecendo vistas amplas e desafogadas.

Localizado no coração do Restelo, uma das zonas residenciais mais prestigiadas de Lisboa, este imóvel beneficia de um enquadramento absolutamente singular, rodeado de jardins, embaixadas e referências emblemáticas como a Torre de Belém, o Mosteiro dos Jerónimos e a Fundação Champalimaud.

A John Taylor é uma das mais antigas e prestigiadas empresas internacionais de mediação imobiliária de luxo, com mais de 160 anos de história dedicados à representação de propriedades excepcionais. Em Portugal, a John Taylor actua em Lisboa, Cascais e Comporta com uma equipa experiente e altamente qualificada, prestando um serviço personalizado baseado no rigor, discrição e conhecimento profundo do mercado.

Para mais informações sobre este imóvel ou para marcar uma visita, convidamo-lo a contactar a John Taylor Portugal. Teremos todo o gosto em prestar um serviço profissional e dedicado.

Proximidades

  • Aeroporto
  • Autocarro
  • Bonde
  • Centro
  • Centro de convençoēs
  • Cinema
  • Creche
  • Escola Primária
  • Escola secundária
  • Estação
  • Estrada
  • Estrada principal
  • Hospital/clínica
  • Lojas
  • Mar
  • Parque
  • Praia
  • Rodoviária
  • Supermercado
  • Tênis
  • Universidade

agência imobiliária de luxo LISBOA
  • TMP REAL ESTATE LDA
    Rua da Lapa, 126
  • 1200-703 LISBOA
  • PORTUGAL

John Taylor
Consulta online

* Campos de preenchimento obrigatório
A informação recolhida é necessária para processar o seu pedido. Em qualquer altura, tem o direito de aceder, modificar e apagar os seus dados.